Turners Hill, Cheshunt, Hertfordshire

Offers in Excess of, £1,300,000 Sold STC

Property Description

  • Freehold development opportunity
  • Planning granted for a total of 8 properties
  • Planning is for 4 x Townhouses and 4 x Apartments
  • Right in the heart of Cheshunt
  • Ideally located for amenities & excellent transport links
  • Viewings strictly by appointments only

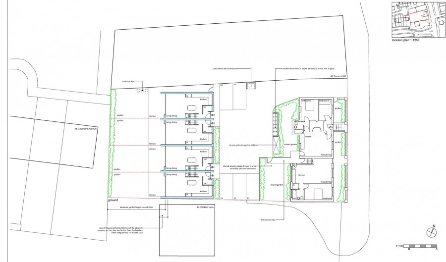
Woodhouse are pleased to offer this freehold development opportunity situated in the heart of Cheshunt.

Planning has been granted for a total of 8 properties - 4 x townhouses and 4 x apartments.

The arrangement is as follows. This freehold site currently comprises of a listed office building on a large plot. Planning has been granted for the existing building to be converted into two apartments (a 1-bed & a 2-bed).

Furthermore planning has also been granted to erect a 2-storey building that will comprise of two further apartments (both 1-beds) and the 4 x Townhouses (all 2-beds).

The location is ideal for Cheshunt’s local shops, eateries and amenities. Cheshunt Station is within walking distance which takes you into Liverpool Street in 20 minutes. Road links nearby include the A10 / M25 / A406, and for greenery a host of woods neaby including within walking distance Lea Valley Nature Reserve.

Neighbourhood investment projects include Google's $1-Billion Data Centre, Sunset Studio's £700-million site, and Brookfield's £400-million expansion.

Contact Woodhouse today for further information and for a site visit.  Viewings by appointment only.

 

In summary, PP granted for:-

Existing listed building to be converted into:
1 x 1-bed flat
1 x 2-bed flat

Detached 2-storey building next to listed building for:
2 x 1-bed flats
4 x 2-bed houses