Goffs Lane, Goffs Oak, Waltham Cross, Hertfordshire

£600,000 Sold STC
3 1 1

Property Description

  • WATCH THE VIRTUAL TOUR FIRST!
  • NEW-BUILD SEMI-DETACHED IN GATED CUL-DE-SAC
  • IMMACULATE FAMILY HOME
  • 3 BEDROOMS
  • 3 FLOORS
  • GATED DEVELOPMENT
  • DRIVEWAY
  • GARDEN
  • GROUND FLOOR WC
  • DESIRABLE WEST CHESHUNT NEIGHBOURHOOD

*Have you seen the Virtual Tour yet? Walk through the house interactively for a better understanding in addition to the photos!* Contact Woodhouse today to arrange a viewing including Saturday & Sundays.

Set in an exclusive small and gated development, Woodhouse are pleased to offer this immaculate 3-Bedroom Family Home in West Cheshunt. Being a new-build it comes with no chain and with a 10-year guarantee. 

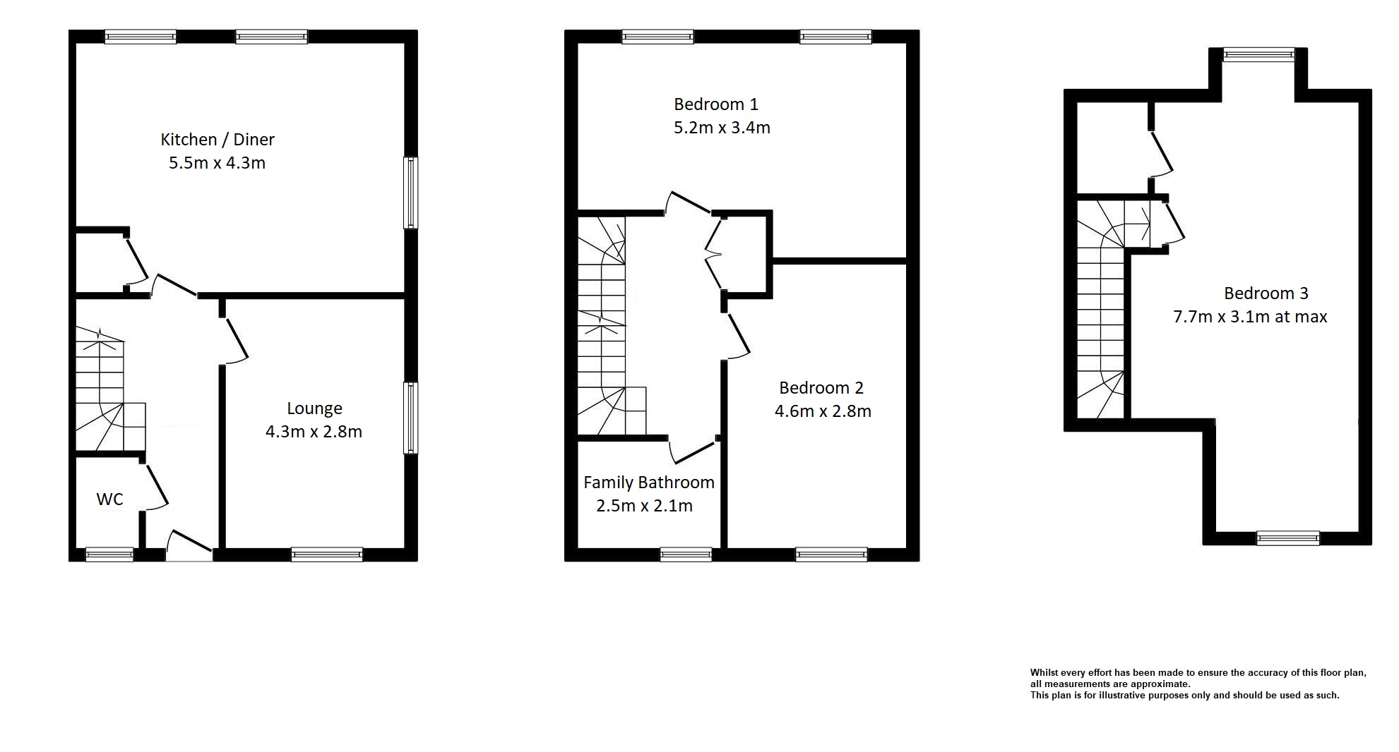
The house is set over 3 floors. To the ground floor is the front lounge, modern-fitted kitchen / diner (with integrated brand-new appliances) & ground floor WC. 

The 2nd floor has two double bedrooms and the family bathroom, and to the top floor is the 3rd double bedroom.  Externally there is a driveway to the front and a lawned garden to the rear.

The Orchard is an exclusive cul-de-sac situated on Goffs Lane, which connects the desirable areas of Cuffley, Goffs Oak and West Cheshunt. Its close proximity with London with its rural features strikes a chord with any young families or professionals. Contact Woodhouse today to discuss further and to arrange a viewing 7 days a week.

 

Lounge

4.3m x 2.8m (14' 1" x 9' 2")

Kitchen / Diner

5.5m x 4.3m (18' 1" x 14' 1")

WC

Bedroom 1 - Rear

5.5m x 3.4m (17' 1" x 11' 2")

Bedroom 2 - Front

4.6m x 2.8m (15' 1" x 9' 2")

Family Bathroom

2.5m x 2.1m (8' 2" x 6' 11")

Bedroom 3 - Top Floor

7.7m x 3.1m (25' 3" x 10' 2") at widest points