Cramond, Reeves Lane, Roydon, Essex

Offers in Excess of, £2,300,000 For Sale

Property Description

  • Commercial Development opportunity
  • 0.72 Hectares (1.78 acres)
  • 5500sqm of glasshouses
  • 3300sqm of which can be converted to 14 Units
  • Furthermore an additional further 1/3 acre with Detached Chalet Bungalow & Outhouses
  • Bungalow has further scope to develop STPP
  • Therefore an overall plot of over 2 acres

Woodhouse are pleased to offer this excellent opportunity to acquire a commercial development site in Roydon. Situated on Reeves Lane, approximately 3 miles from both Harlow and Hoddesdon.

The site is approximately 0.72 hectares (1.78 acres) with approx 5500sqm of existing glasshouses. About 2200sqm of this would be demolished, leaving 3300sqm to be converted into 14 x B1/B8 Units.

The area cleared as a result of the demolition would provide space for a 5.5m wide access road to serve the units as well as space for vehicle parking and turning. The existing aluminium glasshouse structure would be retained, and cladded with profiled steel sheeting backed by insulated panels. Each unit would have a steel roller shutter door and personnel door to its front elevation.

Details of the planning permission can be obtained via the Epping Forest District Council Planning Portal using Reference EPF/1322/20 - for the proposal part demolition of the existing glasshouse and the ancillary nursery buildings change of use and conversion of the remaining glasshouses to form 14 units.

1650sqm of B1(c) light industrial & 1650sqm of B8 storage and distribution. Total gross new internal floor space proposed including changes of use for 3300sqm.

IN ADDITION TO THE ABOVE THERE IS A FURTHER PLOT OF 1/3 ACRE. This plot has numerous outbuildings with the main attraction being a Detached Chalet Bungalow. Comprising of 3 x Double Bedrooms, there is excellent scope here for development STPP.

This whole site therefore totals in excess of 2 acres, and is offered with vacant possession. Contact Woodhouse today for further information and viewing arrangements.

 

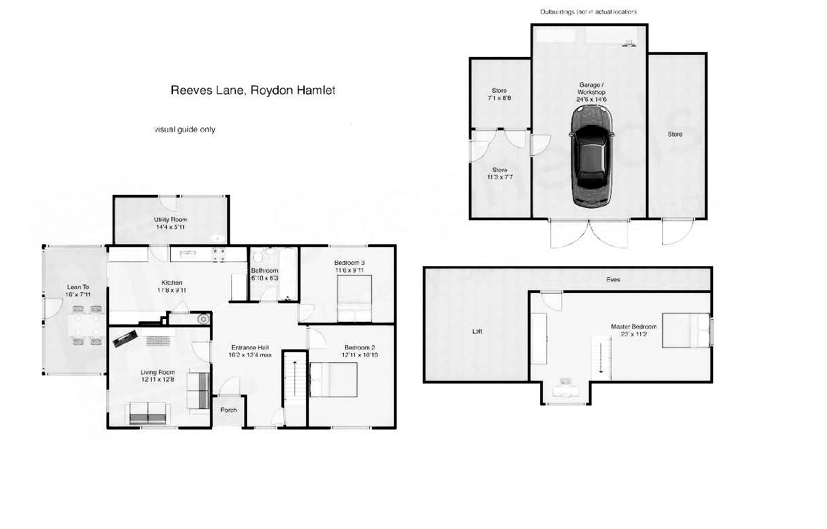
Bungalow dimensions

Porch -
4'1 x 4'1 (1.24m x 1.24m)

Entrance Hall -
16'2 x 12'4 (4.93m x 3.76m)

Living Room -
12'11 x 12'8 (3.94m x 3.86m)

Kitchen -
17'8 x 9'11 max (5.38m x 3.02m max)

Bedroom 2 -
11'6 x 9'11 (3.51m x 3.02m)

Bedroom 3 -
12'10 x 10'10 (3.91m x 3.30m)

Bathroom -
6'10 x 6'3 (2.08m x 1.91m)

Lean To -
16' x 7'11 (4.88m x 2.41m)

Utility Room - 14'4 x 5'11 (4.37m x 1.80m)

First Floor -
Master Bedroom (Loft) - 23' x 11'2 (7.01m x 3.40m)

Garage / Workshop -
24'6 x 14'6 (7.47m x 4.42m)

Outhouse 1 -
11'3 x 7'7 (3.43m x 2.31m)

Outhouse 2 -
8'8 x 7'1 (2.64m x 2.16m)

Shed - 20'11 x 7'2 (6.38m x 2.18m)

SALES DISCLAIMER

Services, fixtures and fittings haven’t been tested.
All measurements are approximate.
Your solicitor will confirm tenure and any other legal information.
As required by Money Laundering Regulations, should your offer be accepted, we will require proof of identity & funds.