Turners Hill, Cheshunt, Waltham Cross, Hertfordshire

£799,950 For Sale

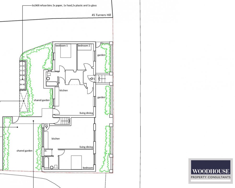
Property Description

  • Freehold development opportunity
  • Planning granted for a total of 4 x Apartments
  • PP for two Apartments in existing building, + extra building for two more apartments
  • Right in the heart of Cheshunt
  • Ideally located for amenities & excellent transport links
  • Viewings strictly by appointments only

Woodhouse are pleased to offer this development opportunity situated in the heart of Cheshunt.  The site currently comprises of a listed office building, and planning has been granted for the existing building to be converted into two apartments (a 1-bed & a 2-bed).  Further planning has granted the erection to the side for a two-storey building  that will comprise of two further apartments (both 1-beds).

The location is ideal for Cheshunt’s local shops, eateries and amenities. Cheshunt & Theobalds Grove stations are both within walking distance, which takes you into Liverpool Street in 20 minutes. Road links nearby include the A10 / M25 / A406, and for greenery a host of woods nearby including within walking distance Lea Valley Nature Reserve.

Neighbourhood investment projects include Google's $1-Billion Data Centre, Sunset Studio's £700-million site, and Brookfield's £400-million expansion.

Contact Woodhouse today for further information and for a site visit. Viewings by appointment only.

 

SALES DISCLAIMER

Services, fixtures and fittings haven’t been tested.
All measurements are approximate.
Your solicitor will confirm tenure and any other legal information.
As required by Money Laundering Regulations, should your offer be accepted, we will require proof of identity & funds.