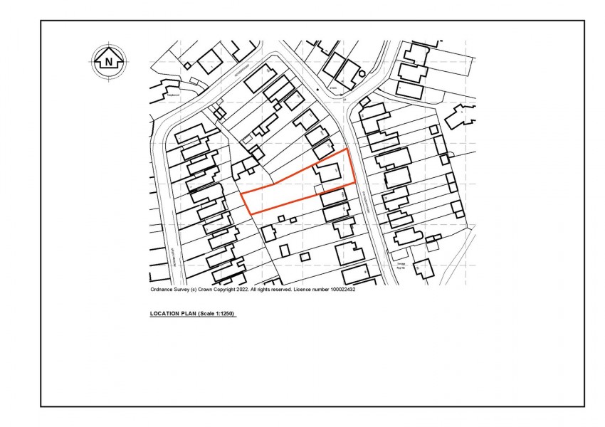
Old Nazeing Road, Broxbourne

Offers Over, £800,000 For Sale

Property Description

  • Residential Development Opportunity
  • PLANNING PERMISSION GRANTED
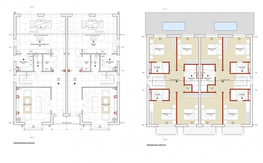
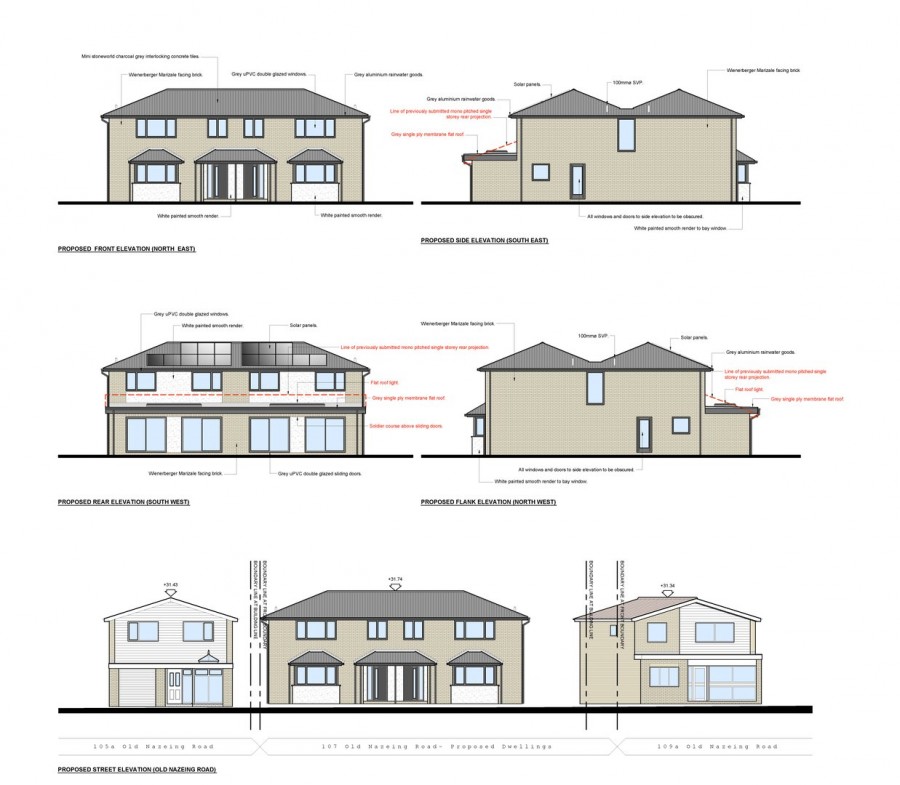
  • PP for 2 x luxury 4-Bedroom Houses
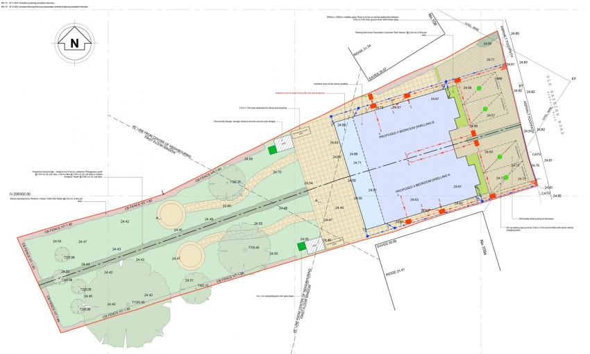
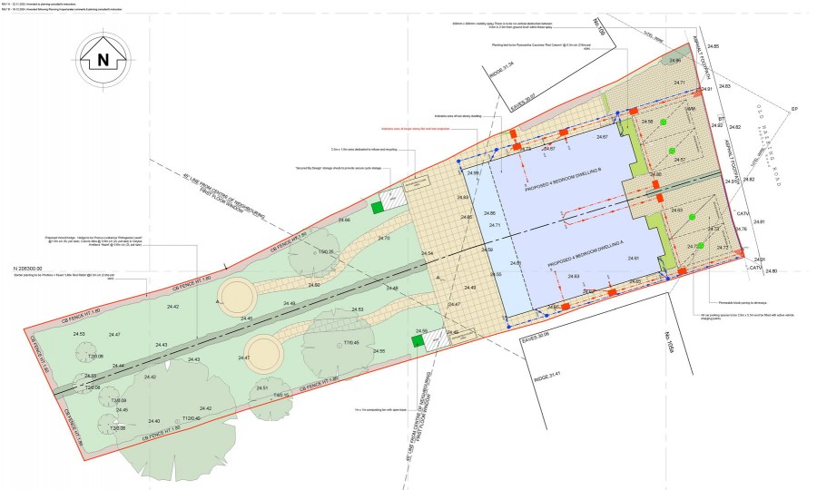
  • Generous Plot
  • Prestigious neighbourhood
  • Walking distance to Broxbourne station providing fast and frequent services into London
  • Close to highly-regarded state, grammar and independent schools
  • Easy access to A10 / M25
  • Viewings strictly by appointment only

Woodhouse are pleased to offer this substantial plot set in a coveted neighbourhood of Broxbourne.

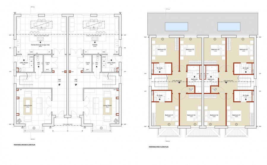
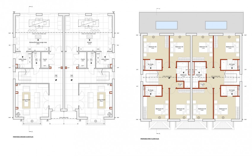
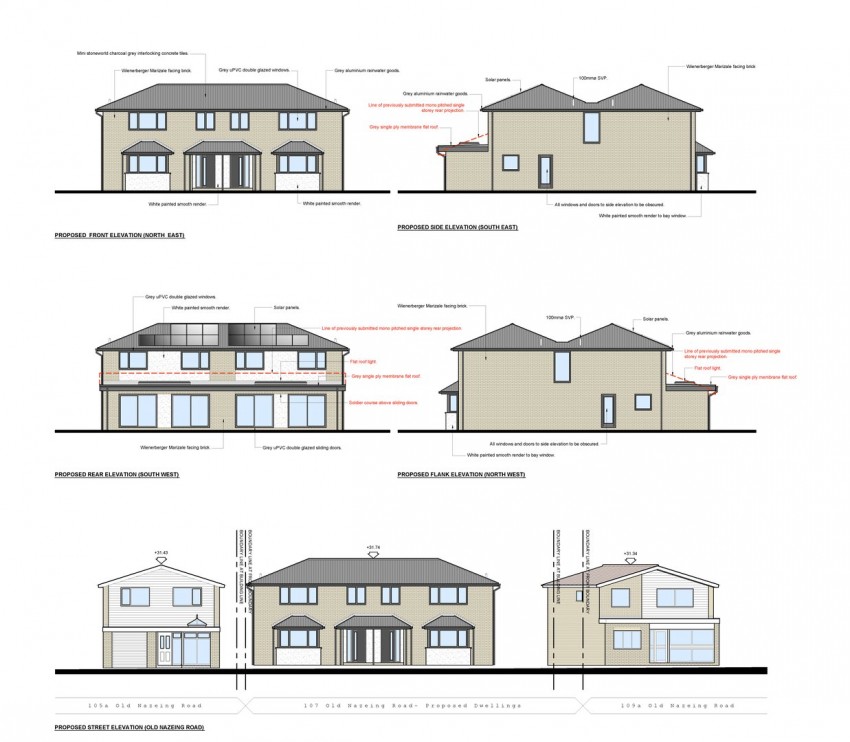
Planning Permission has been granted for the demolition of the existing bungalow, to be replaced by 2 x 4-Bedroom luxury family homes.  More details can be found on the Epping Forest Planning Portal using reference EPF/0752/25 - and contact us for further information and to arrange a site visit. 

Broxbourne is ideally located for commuting professionals & families that prefer living in the Home Counties yet so close to the city.  You are walking distance to Broxbourne Station with its fast and frequent service into Liverpool St / Tottenham Hale / Stratford.   For road links the A10 and M25 are a very short drive away.  There is the benefit of being in close proximity to a selection of highly-regarded state, grammar and private schools.

Contact Woodhouse today to discuss further the potential and opportunity this site offers.

 

SALES DISCLAIMER

Services, fixtures and fittings haven’t been tested.
All measurements are approximate.
Your solicitor will confirm tenure and any other legal information.
As required by Money Laundering Regulations, should your offer be accepted, we will require proof of identity & funds.